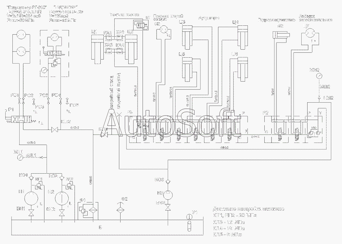
Каталог запасных частей к технике: ЕлАЗ АПР-60/80 (2007). Схема гидравлическая принципиальная

310.3.112.04.06
У462.817.1
У462.817.1
У462.817.1
У462.817.1
У462.817.1
У462.817.1
ТУ26-07-1452-88
КШШ-20-250.00.000
КШП-32-250.00.000
М635RL250.09
М635RL250.09
6400-10.162-50.204-1500
6400-10.162-50.204-2500
310.3.112.03.06 правый
У462.817.1
У462.817.1
НШ50-КУЛ
620.01.204.21
FAM10-20+FAF10-20
FAM10-20+FAF10-20
FAM10-16+FAF10-16
FAM10-16+FAF10-16
FAM10-12+FAF10-12
FAM10-08+FAF10-08
RFM-110-CV-1-B-B-8-R1-S
Ц22А.000М
310.3.56.00.06
310.3.56.00.06
1Рн323-ФВ64
1РСММ12-25-02.1-2х04.1Е-07.2
1РСММ12-25-02.5-5х04.1-0,4.1ЕК
АР.05.07.000
АР.05.44.000
АР.05.44.000
Ц22А.000М
Ц22А.000М
Ц22А.000М
АПР60/80.05.01.000
А50М.26.01.000
ТМ478G150
АР.05.06.000
АР.05.06.000
АР.05.06.000
АР.05.06.000
Г51-35
Г51-35
КОЛ-203
У462.817.1
У462.817.1
Позиция на иллюстрации | Заводской номер детали | Название детали | |
---|---|---|---|
1Рн323-ФВ64 | 1***4 | Гидрораспределитель | |
1РСММ12-25-02.1-2х04.1Е-07.2 | 1***2 | Гидрораспределитель | |
1РСММ12-25-02.5-5х04.1-0,4.1ЕК | 1***К | Гидрораспределитель | |
310.3.112.03.06 правый | 3***й | Насос аксиально-поршневой | |
310.3.112.04.06 | 3***6 | Насос аксиально-поршневой | |
310.3.56.00.06 | 3***6 | Гидромотор | |
620.01.204.21 | 6***1 | Ниппель-манометр | |
620.01.204.21 | 6***1 | Ниппель-манометр | |
6400-10.162-50.204-1500 | 6***0 | Микрошланг | |
6400-10.162-50.204-2500 | 6***0 | Микрошланг | |
FAM10-08+FAF10-08 | F***8 | Разъемное соединение | |
FAM10-12+FAF10-12 | F***2 | Разъемное соединение | |
FAM10-16+FAF10-16 | F***6 | Разъемное соединение | |
FAM10-16+FAF10-16 | F***6 | Разъемное соединение | |
FAM10-20+FAF10-20 | F***0 | Разъемное соединение | |
FAM10-20+FAF10-20 | F***0 | Разъемное соединение | |
RFM-110-CV-1-B-B-8-R1-S | R***S | Фильтр | |
А50М.26.01.000 | А***0 | Гидроцилиндр | |
АПР60/80.05.01.000 | А***0 | Бак масляный | |
АР.05.06.000 | А***0 | Клапан аварийный | |
АР.05.06.000 | А***0 | Клапан аварийный | |
АР.05.06.000 | А***0 | Клапан аварийный | |
АР.05.06.000 | А***0 | Клапан аварийный | |
АР.05.07.000 | А***0 | Гидротормоз | |
АР.05.44.000 | А***0 | Гидроцилиндр | |
АР.05.44.000 | А***0 | Гидроцилиндр | |
Г51-35 | Г***5 | Клапан обратный | |
Г51-35 | Г***5 | Клапан обратный | |
КОЛ-203 | К***3 | Клапан обратный | |
КШП-32-250.00.000 | К***0 | Кран шаровой | |
КШШ-20-250.00.000 | К***0 | Кран шаровой | |
М635RL250.09 | М***9 | Манометр | |
М635RL250.09 | М***9 | Манометр | |
НШ50-КУЛ | Н***Л | Насос шестеренный | |
ТМ478G150 | Т***0 | Заливочная горловина | |
ТУ26-07-1452-88 | Т***8 | Кран муфтовый ТУ26-07-1452-88 | |
У462.817.1 | У***1 | Клапан предохранительный | |
У462.817.1 | У***1 | Клапан предохранительный | |
У462.817.1 | У***1 | Клапан предохранительный | |
У462.817.1 | У***1 | Клапан предохранительный | |
У462.817.1 | У***1 | Клапан предохранительный | |
Ц22А.000М | Ц***М | Гидроцилиндр | |
Ц22А.000М | Ц***М | Гидроцилиндр | |
Ц22А.000М | Ц***М | Гидроцилиндр | |
Ц22А.000М | Ц***М | Гидроцилиндр |
Содержащиеся в справочниках-каталогах запасные части и детали не предлагаются к продаже, а носят исключительно информационный характер. В демо-версии артикулы (номера деталей) скрыты. Если вы хотите видеть полные оригинальные номера запчастей, вам необходимо зарегистрироваться на нашем сайте и приобрести подписку по интересующей вас конфигурации, после этого вы сможете встроить онлайн-каталоги на ваш сайт или пользоваться ими из личного кабинета нашего сайта. Обращаем ваше внимание на то, что каталоги содержат информацию об оригинальных заводских номерах и названиях запчастей. База по аналогам в данный момент не реализована. Поиска по VIN-номерам в онлайн-каталоге не предусмотрено. Выбор конкретного каталога осуществляется путем открытия нужного типа техники, марки, модели с учетом года выпуска или модификации.