Каталог запасных частей к технике: SANY RSC45C. 10397319 Radiating & Braking system RSC45M.2.3
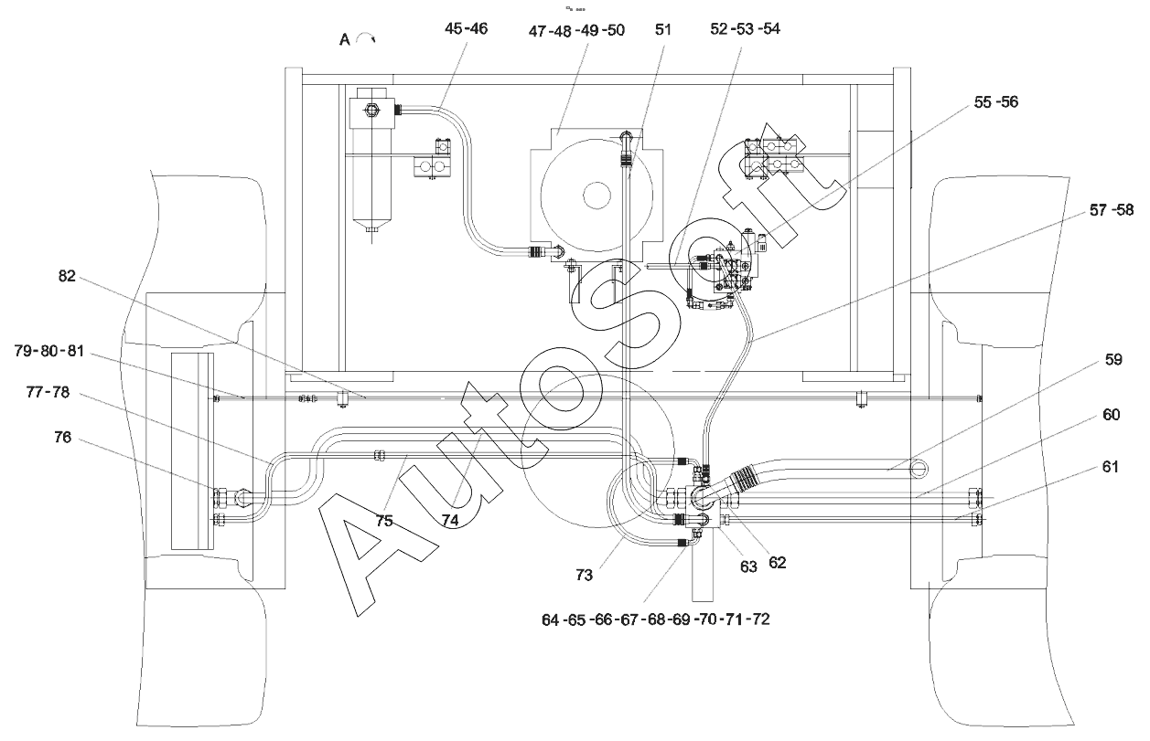
74
65
66
67
68
69
70
71
72
73
64
75
76
77
78
79
80
81
82
55
46
47
48
49
50
51
52
53
54
45
56
57
58
59
60
61
62
63
| Позиция на иллюстрации | Заводской номер детали | Название детали | |
|---|---|---|---|
| 45 | B***1 | Hose | |
| 46 | B***0 | Connector, hose, EW18LOMDA3C | |
| 47 | B***6 | Radiator Y360x210x420-10Q/SY015028 | |
| 48 | A***7 | Screw | |
| 49 | A***7 | Washer | |
| 50 | B***4 | Connector, hose, GE18LR3/4EDOMDA3C | |
| 51 | B***8 | Hose | |
| 52 | B***6 | Hose | |
| 53 | B***6 | Connector, hose, EW10LOMDA3C | |
| 54 | B***8 | Pipe joint GE10L7/16UNFOMDA3C | |
| 55 | A***0 | Brake control valve group RSC45.2.3.15 | |
| 56 | A***9 | Bolt | |
| 57 | B***3 | Hose | |
| 58 | B***4 | Connector, hose, EW12LOMDA3C | |
| 59 | B***7 | Hose 2SN32-DKOL90-1600-V0Q/SY1102 | |
| 60 | B***1 | Hose 2SN32-DKOL-680(ST)Q/SY1102 | |
| 61 | B***8 | Hose 2SN20-DKOL-700(ST)Q/SY1102 | |
| 62 | B***8 | Pipe joint GE12LM18x1.5EDOMDA3C | |
| 63 | B***1 | Connector, hose, GE18LMEDOMDA3C | |
| 64 | A***2 | Oil retainer block RSC45.2.3.10-1 | |
| 65 | A***9 | Bolt | |
| 66 | A***7 | Washer | |
| 67 | A***3 | Mounting plate RSC45.2.3.10-2 | |
| 68 | A***5 | Screw M6x15GB80 | |
| 69 | B***6 | One-way valve RHZ15LMEDOMD | |
| 70 | B***0 | Connector, hose, GE15LMEDOMDA3C | |
| 71 | B***4 | Pipe joint GE35LMEDOMDA3C | |
| 72 | B***2 | Pipe joint GE22LM22x1.5EDOMA3C | |
| 73 | B***0 | Hose | |
| 74 | 6***4 | Hose, rubber, 2SN32-DKOL-DKOL90-1600Q/SY1102 | |
| 75 | A***5 | Steel tube RSC45.2.3.21 | |
| 76 | B***4 | Pipe joint GE35LMEDOMDA3C | |
| 77 | A***4 | Steel tube RSC45.2.3.20 | |
| 78 | B***2 | Pipe joint GE22LM22x1.5EDOMA3C | |
| 79 | A***3 | Steel tube RSC45.2.3.6 | |
| 80 | B***6 | Connector, pipe | |
| 81 | B***5 | Connector, hose, EL10LOMDA3C | |
| 82 | A***2 | Steel tube RSC45.2.3.7 |
Содержащиеся в справочниках-каталогах запасные части и детали не предлагаются к продаже, а носят исключительно информационный характер. В демо-версии артикулы (номера деталей) скрыты. Если вы хотите видеть полные оригинальные номера запчастей, вам необходимо зарегистрироваться на нашем сайте и приобрести подписку по интересующей вас конфигурации, после этого вы сможете встроить онлайн-каталоги на ваш сайт или пользоваться ими из личного кабинета нашего сайта. Обращаем ваше внимание на то, что каталоги содержат информацию об оригинальных заводских номерах и названиях запчастей. База по аналогам в данный момент не реализована. Поиска по VIN-номерам в онлайн-каталоге не предусмотрено. Выбор конкретного каталога осуществляется путем открытия нужного типа техники, марки, модели с учетом года выпуска или модификации.