Каталог запасных частей к технике: WIRTGEN 2200CR (2017). PUMP SUPPORT I

57
57
57
68
67
67
66
65
64
63
62
62
61
61
60
59
58
58
58
69
56
56
56
56
55
54
53
52
51
51
50
49
48
47
80
90
89
88
87
86
85
84
83
82
81
46
79
78
77
76
76
75
74
73
72
71
70
12
23
22
21
20
19
18
17
16
16
15
14
13
13
24
11
10
9
9
8
7
6
5
4
3
3
2
35
35
35
45
44
43
42
41
41
41
41
40
39
38
37
36
36
1
34
33
32
31
30
29
28
28
27
26
26
25
25
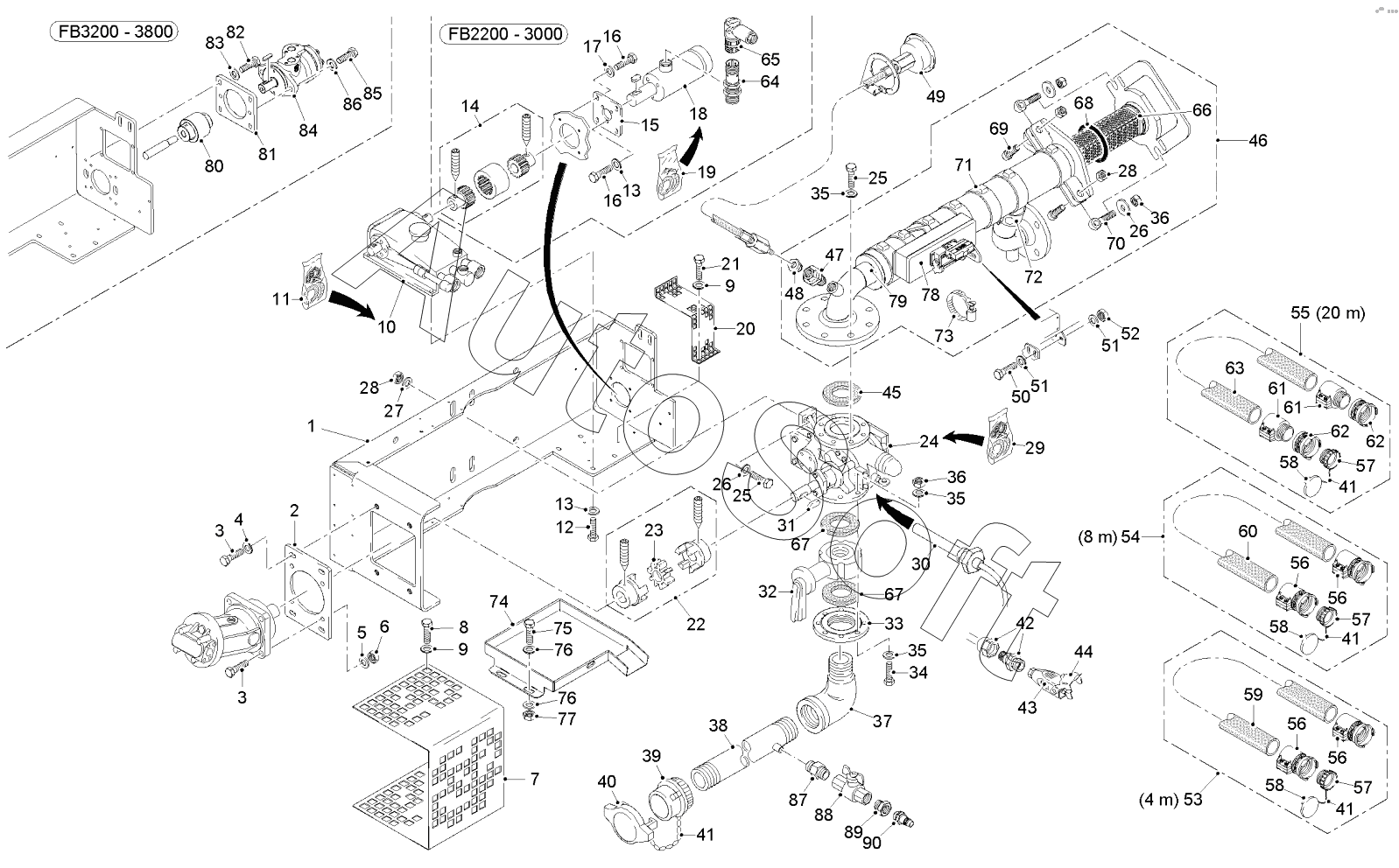
Позиция на иллюстрации | Заводской номер детали | Название детали | |
---|---|---|---|
1 | 1***6 | HOLDER | |
2 | 1***0 | HOLDER | |
3 | 4***2 | SCREW | |
4 | 3***4 | WASHER | |
5 | 5***7 | WASHER | |
6 | 5***2 | HEXAGON NUT | |
7 | 1***2 | PROTECTIVE GRID | |
8 | 4***8 | SCREW | |
9 | 5***9 | WASHER | |
10 | 8***1 | WATER PUMP | |
11 | 1***5 | REPAIR SET | |
12 | 4***2 | SCREW | |
13 | 5***6 | WASHER | |
14 | 8***7 | COUPLING | |
15 | 1***1 | HOLDER | |
16 | 4***0 | SCREW | |
17 | 5***8 | WASHER | |
18 | 1***8 | HYDRAULIC MOTOR | |
19 | 8***2 | SET OF SEALS | |
20 | 1***9 | PROTECTIVE GRID | |
21 | 5***9 | SCREW | |
22 | 1***2 | COUPLING | |
23 | 1***7 | CLUTCH INSERT | |
24 | 9***3 | BITUMEN PUMP | |
25 | 4***2 | SCREW | |
26 | 3***6 | WASHER | |
27 | 5***9 | WASHER | |
28 | 5***4 | HEXAGON NUT | |
29 | 9***8 | SET OF SEALS | |
30 | 9***8 | HEATER CARTRIDGE | |
31 | 5***0 | FEATHER KEY | |
32 | 9***9 | SHUT-OFF PLATE | |
33 | 9***7 | FLANGE | |
34 | 4***3 | SCREW | |
35 | 5***1 | WASHER | |
36 | 5***1 | HEXAGON NUT | |
37 | 1***6 | ANGLE | |
38 | 2***5 | TWIN PIPE NIPPLE | |
39 | 9***9 | COUPLING | |
40 | 9***1 | DUMMY CAP | |
41 | 5***2 | CHAIN | |
42 | 2***6 | CABLE JOINT | |
43 | 2***8 | SCREW CAP | |
44 | 2***6 | SECURITY CLIP | |
45 | 1***1 | SEALING | |
46 | 1***5 | FILTER-TUBE | |
47 | 4***6 | SCREWED JOINT | |
48 | 5***0 | REDUCING BUSH | |
49 | 1***1 | PRESSURE GAUGE | |
50 | 4***9 | SCREW | |
51 | 5***5 | WASHER | |
52 | 5***9 | HEXAGON NUT | |
53 | 1***2 | HOSE CPL. 4000LG | |
54 | 1***1 | HOSE CPL. 8000LG | |
55 | 1***9 | HOSE COMPL. 20000LG | |
56 | 7***6 | HOSE COUPLING | |
57 | 9***9 | COUPLING | |
58 | 9***1 | DUMMY CAP | |
59 | 1***1 | TANK HOSE | |
60 | 1***1 | TANK HOSE | |
61 | 1***9 | THREADED CONNECTOR | |
62 | 9***0 | COUPLING | |
63 | 1***1 | TANK HOSE | |
64 | 1***7 | PICK-UP: RPM | |
65 | 8***9 | FEMALE PLUG | |
66 | 1***0 | FILTER INSERT | |
67 | 1***1 | SEALING | |
68 | 1***4 | O-RING SEAL | |
69 | 4***1 | SCREW | |
70 | 1***1 | SCREW | |
71 | 8***0 | NOZZLE BAND HEATER | |
72 | 8***1 | NOZZLE BAND HEATER | |
73 | 1***3 | WORM DRIVE HOSE CLIP | |
74 | 2***3 | PROTECTING SHEET | |
75 | 4***9 | SCREW | |
76 | 5***6 | WASHER | |
77 | 5***0 | HEXAGON NUT | |
78 | 1***6 | CONDUIT BOX | |
79 | 1***1 | FILTER-TUBE | |
80 | 2***1 | COUPLING | |
81 | 2***7 | RETAINING PLATE | |
82 | 4***0 | SCREW | |
83 | 5***6 | WASHER | |
84 | 2***7 | HYDRAULIC MOTOR | |
85 | 4***2 | SCREW | |
86 | 5***5 | WASHER | |
87 | 5***2 | TWIN NIPPLE | |
88 | 2***4 | BALL VALVE | |
89 | 5***6 | REDUCING BUSH | |
90 | 1***3 | CONNECTOR |
Содержащиеся в справочниках-каталогах запасные части и детали не предлагаются к продаже, а носят исключительно информационный характер. В демо-версии артикулы (номера деталей) скрыты. Если вы хотите видеть полные оригинальные номера запчастей, вам необходимо зарегистрироваться на нашем сайте и приобрести подписку по интересующей вас конфигурации, после этого вы сможете встроить онлайн-каталоги на ваш сайт или пользоваться ими из личного кабинета нашего сайта. Обращаем ваше внимание на то, что каталоги содержат информацию об оригинальных заводских номерах и названиях запчастей. База по аналогам в данный момент не реализована. Поиска по VIN-номерам в онлайн-каталоге не предусмотрено. Выбор конкретного каталога осуществляется путем открытия нужного типа техники, марки, модели с учетом года выпуска или модификации.