Каталог запасных частей к технике: WIRTGEN 2200SM (2017). FOLDING THE HYDR.FOLDING CONV.

46
32
32
33
33
33
34
34
34
34
34
34
34
34
35
35
36
37
37
38
38
39
39
40
40
41
41
42
43
44
45
31
31
31
31
47
47
47
48
48
49
49
50
50
50
50
50
51
53
53
54
54
54
54
55
56
57
58
59
60
61
16
2
3
4
4
5
5
6
7
8
9
9
10
11
11
11
12
12
13
14
15
1
17
18
19
19
19
19
19
19
19
20
21
22
22
23
23
24
24
25
25
26
26
26
26
26
26
27
28
28
29
29
30
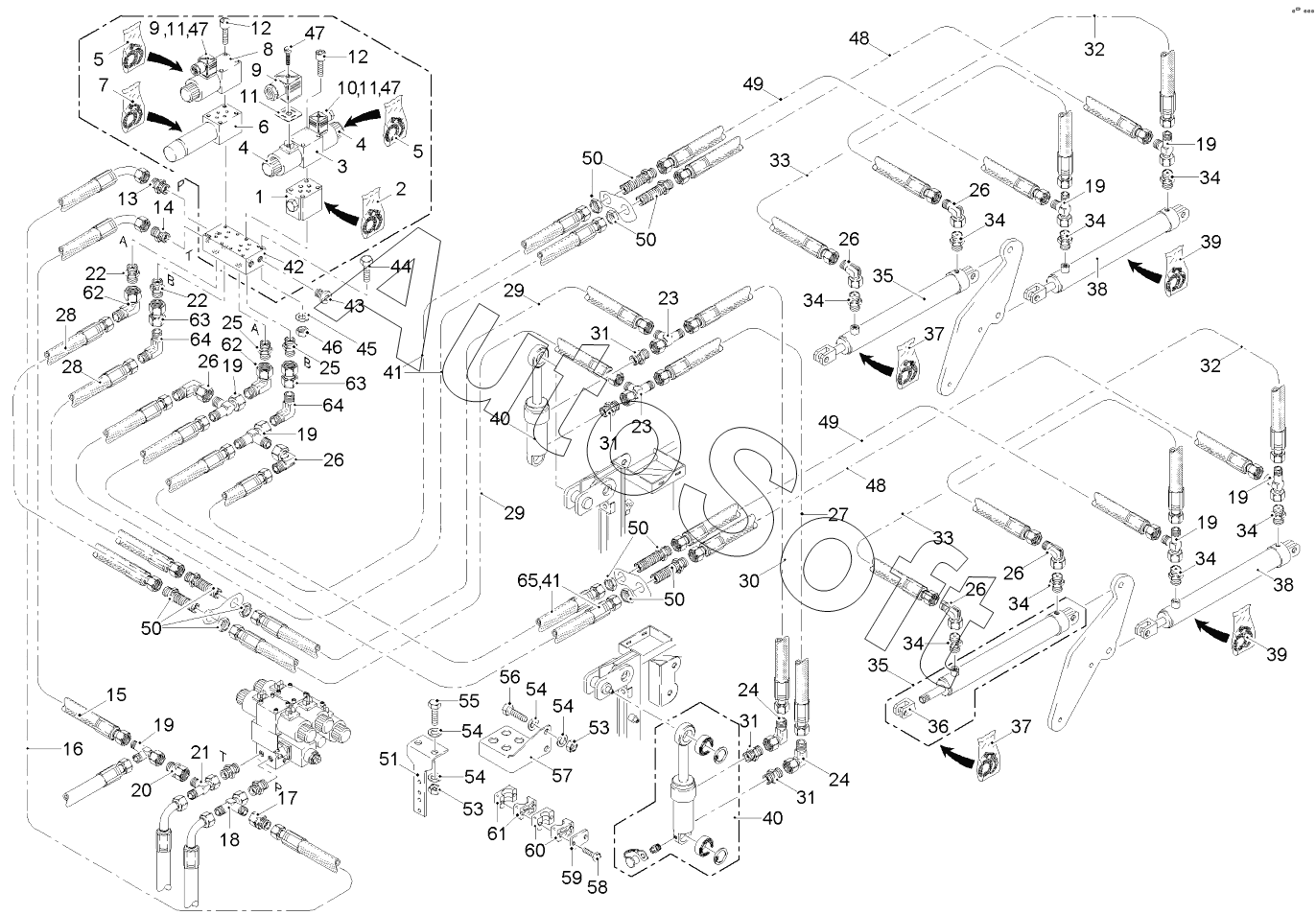
Позиция на иллюстрации | Заводской номер детали | Название детали | |
---|---|---|---|
1 | 1***6 | NONRETURN VALVE | |
2 | 1***5 | SET OF SEALS | |
3 | 1***1 | DIRECTIONAL VALVE | |
4 | 1***0 | SOLENOID | |
5 | 1***1 | SET OF SEALS | |
6 | 3***1 | PRESSURE REDUCTION VALVE | |
7 | 1***7 | SET OF SEALS | |
8 | 1***5 | DIRECTIONAL VALVE | |
9 | 1***7 | FEMALE PLUG | |
10 | 1***7 | FEMALE PLUG | |
11 | 2***1 | SEAL | |
12 | 5***6 | SCREW | |
13 | 3***0 | MALE STUD COUPLING | |
14 | 1***9 | MALE STUD COUPLING | |
15 | 5***5 | HYDRAULIC HOSE | |
16 | 1***3 | HYDRAULIC HOSE | |
17 | 3***7 | REDUCING COUPLING | |
18 | 4***7 | ADJUSTABLE STUD BARREL TEE | |
19 | 3***9 | ADJ.MALE STUD TEE-STUD BARREL | |
20 | 3***7 | REDUCING COUPLING | |
21 | 1***4 | ADJ.MALE STUD TEE-STUD BARREL | |
22 | 1***6 | MALE STUD COUPLING | |
23 | 3***9 | ADJ.MALE STUD TEE-STUD BARREL | |
24 | 3***8 | ADJUSTABLE MALE STUD ELBOW | |
25 | 1***6 | MALE STUD COUPLING | |
26 | 3***8 | ADJUSTABLE MALE STUD ELBOW | |
27 | 1***6 | HYDRAULIC HOSE | |
28 | 1***7 | HYDRAULIC HOSE | |
29 | 5***2 | HYDRAULIC HOSE | |
30 | 1***7 | HYDRAULIC HOSE | |
31 | 3***2 | MALE STUD COUPLING | |
32 | 1***5 | HYDRAULIC HOSE | |
33 | 1***6 | HYDRAULIC HOSE | |
34 | 1***2 | THROTTLE CONNECTOR | |
35 | 4***0 | HYDRAULIC CYLINDER | |
36 | 1***8 | FORK HEAD | |
37 | 6***5 | SET OF SEALS | |
38 | 1***4 | HYDRAULIC CYLINDER | |
39 | 6***3 | SET OF SEALS | |
40 | 8***4 | HYDRAULIC CYLINDER | |
41 | 4***5 | HYDRAULIC HOSE | |
42 | 3***7 | MANIFOLD PLATE | |
43 | 7***4 | SCREWED SEALING PLUG | |
44 | 6***7 | SCREW | |
45 | 6***7 | WASHER | |
46 | 5***0 | HEXAGON NUT | |
47 | 2***0 | KNURLED HEAD SCREW | |
48 | 1***8 | HYDRAULIC HOSE | |
49 | 1***7 | HYDRAULIC HOSE | |
50 | 3***8 | BULKHEAD COUPLING | |
51 | 1***9 | HOSE FASTENER | |
53 | 5***3 | HEXAGON NUT | |
54 | 5***5 | WASHER | |
55 | 5***1 | SCREW | |
56 | 4***4 | SCREW | |
57 | 1***0 | BULKHEAD PLATE | |
58 | 5***7 | SCREW | |
59 | 4***7 | COVER PLATE | |
60 | 4***1 | PIPE CLIP | |
61 | 4***0 | PIPE CLIP |
Содержащиеся в справочниках-каталогах запасные части и детали не предлагаются к продаже, а носят исключительно информационный характер. В демо-версии артикулы (номера деталей) скрыты. Если вы хотите видеть полные оригинальные номера запчастей, вам необходимо зарегистрироваться на нашем сайте и приобрести подписку по интересующей вас конфигурации, после этого вы сможете встроить онлайн-каталоги на ваш сайт или пользоваться ими из личного кабинета нашего сайта. Обращаем ваше внимание на то, что каталоги содержат информацию об оригинальных заводских номерах и названиях запчастей. База по аналогам в данный момент не реализована. Поиска по VIN-номерам в онлайн-каталоге не предусмотрено. Выбор конкретного каталога осуществляется путем открытия нужного типа техники, марки, модели с учетом года выпуска или модификации.