Каталог запасных частей к технике: WIRTGEN 2200SM (2017). CHASSIS-ANC.PARTS SM-VERSION

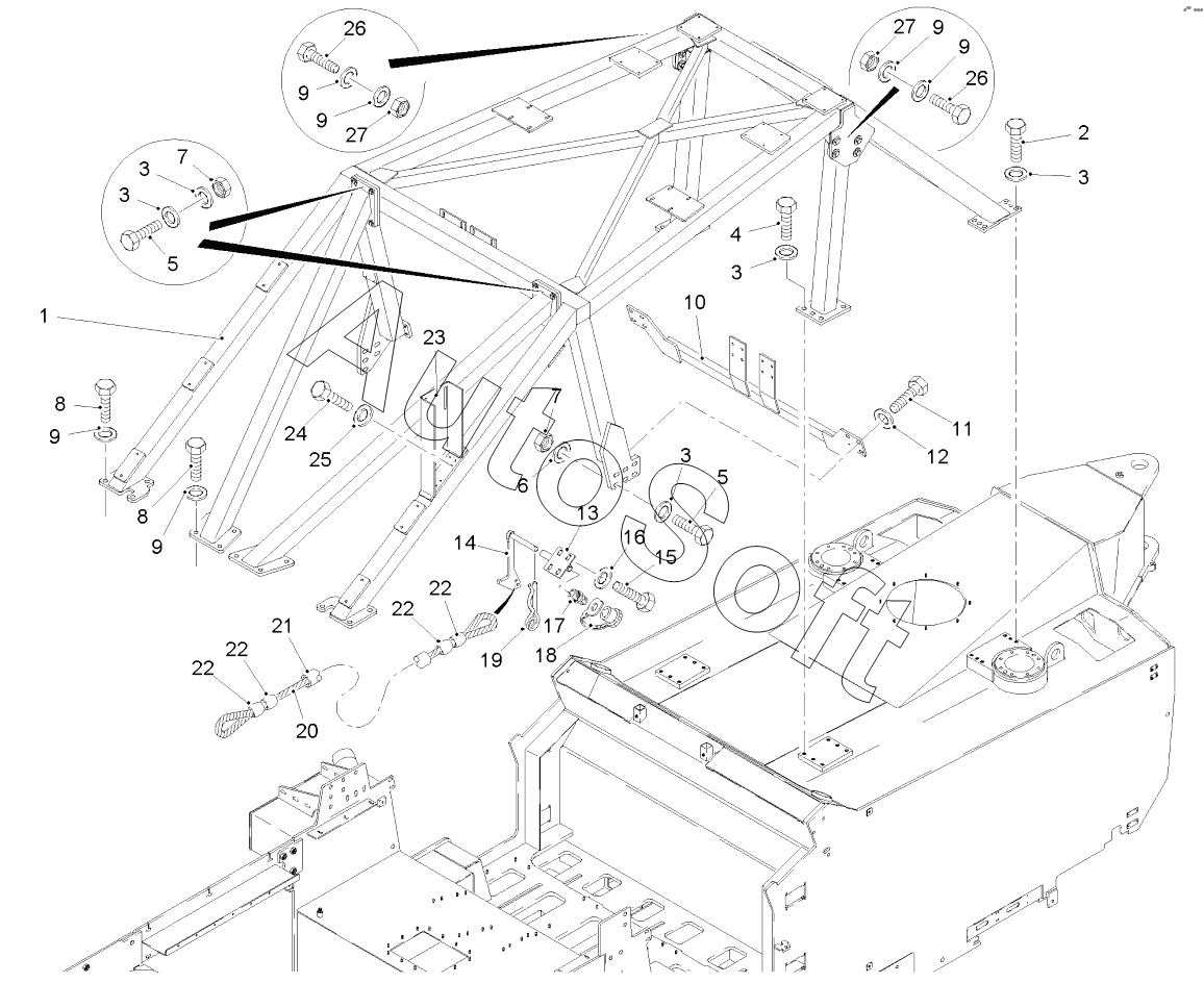
14
27
27
26
26
25
24
23
22
22
22
22
21
20
19
18
17
16
15
1
13
12
11
10
9
9
9
9
9
9
8
8
7
7
6
5
5
4
3
3
3
3
3
2
Позиция на иллюстрации | Заводской номер детали | Название детали | |
---|---|---|---|
1 | 1***2 | OVERLAY | |
2 | 4***3 | SCREW | |
3 | 9***0 | WASHER | |
4 | 4***3 | SCREW | |
5 | 8***0 | SCREW | |
6 | 5***8 | WASHER | |
7 | 2***2 | HEXAGON NUT | |
8 | 4***7 | SCREW | |
9 | 1***4 | WASHER | |
10 | 1***4 | TRAVERSE | |
11 | 4***1 | SCREW | |
12 | 4***3 | WASHER | |
13 | 1***4 | HOLDER | |
14 | 1***8 | HOLDER | |
15 | 4***0 | SCREW | |
16 | 3***6 | WASHER | |
17 | 8***1 | GREASING NIPPLE | |
18 | 1***1 | CAP | |
19 | 7***1 | SPRING PIN | |
20 | 1***7 | WIRE ROPE | |
21 | 2***3 | SHRINKDOWN PLASTIC TUBING | |
22 | 7***3 | WIRE CLIP | |
23 | 1***9 | HOLDER | |
24 | 4***2 | SCREW | |
25 | 4***8 | WASHER | |
26 | 4***8 | SCREW | |
27 | 3***2 | HEXAGON NUT |
Содержащиеся в справочниках-каталогах запасные части и детали не предлагаются к продаже, а носят исключительно информационный характер. В демо-версии артикулы (номера деталей) скрыты. Если вы хотите видеть полные оригинальные номера запчастей, вам необходимо зарегистрироваться на нашем сайте и приобрести подписку по интересующей вас конфигурации, после этого вы сможете встроить онлайн-каталоги на ваш сайт или пользоваться ими из личного кабинета нашего сайта. Обращаем ваше внимание на то, что каталоги содержат информацию об оригинальных заводских номерах и названиях запчастей. База по аналогам в данный момент не реализована. Поиска по VIN-номерам в онлайн-каталоге не предусмотрено. Выбор конкретного каталога осуществляется путем открытия нужного типа техники, марки, модели с учетом года выпуска или модификации.