Каталог запасных частей к технике: ЧСДМ ДЗ-98В (2022). Оборудование путепрокладочное (ДЗ-98В1.5.28.00.000);Tracklaying equipment

33
23
24
25
26
27
28
29
29
30
30
31
32
22
34
35
36
37
38
39
40
41
42
42
42
42
42
42
42
42
42
42
42
42
42
12
2
2
2
2
2
3
3
3
3
3
3
3
4
4
4
4
5
6
6
6
6
6
6
6
6
6
6
6
6
6
7
8
9
10
10
10
10
11
1
1
1
1
1
13
14
15
16
17
18
18
19
19
19
20
20
21
21
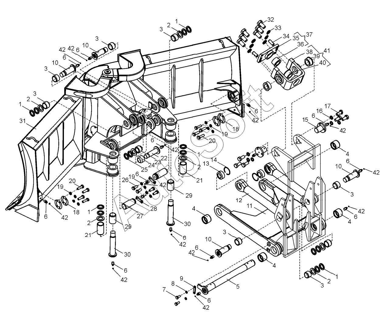
Позиция на иллюстрации | Заводской номер детали | Название детали | |
---|---|---|---|
1 | 0***3 | Гайка | |
2 | 0***1 | Шайба | |
3 | Д***1 | Втулка | |
4 | Д***6 | Втулка | |
5 | Д***0 | Ось | |
6 | М***6 | Маслёнка 1.2.Ц6 | |
7 | Б***9 | Болт М10-6gx25.58.019 | |
8 | Ш***9 | Шайба 10.65Г.069 | |
9 | Д***7 | Серьга | |
10 | Д***1 | Ось | |
11 | Д***0 | Рама | |
12 | Д***0 | Тяга | |
13 | П***К | Подшипник ШСЛ-60К | |
14 | К***0 | Кольцо С90 | |
15 | Д***5 | Палец | |
16 | Ш***9 | Шайба 16.65Г.069 | |
17 | Б***9 | Болт М16-6gx35.58.019 | |
18 | П***8 | Прокладка | |
19 | Ш***9 | Шайба 12.65Г.069 | |
20 | Б***9 | Болт М12х1,25-6gх40.18.35Х.019 | |
21 | Д***4 | Втулка | |
22 | Д***3 | Палец | |
23 | Д***4 | Втулка | |
24 | Д***7 | Шайба | |
25 | Д***6 | Гайка | |
26 | Б***9 | Болт М12-6gх30.58.019 | |
27 | Д***1 | Палец | |
28 | Д***2 | Ригель | |
29 | Д***1 | Втулка | |
30 | Д***3 | Палец | |
31 | Д***0 | Отвал | |
32 | Б***) | Болт М20-6gх40. 58.0 19(S30) | |
33 | Ш***9 | Шайба | |
34 | Д***3 | Штифт | |
35 | Д***0 | Крышка | |
36 | Д***1 | Втулка | |
37 | Д***0 | Крышка | |
38 | Д***0 | Вилка | |
39 | Д***4 | Втулка | |
40 | Д***1 | Втулка | |
41 | Д***0 | Вилка | |
42 | 2***2 | Колпачок пресс-масленки |
Содержащиеся в справочниках-каталогах запасные части и детали не предлагаются к продаже, а носят исключительно информационный характер. В демо-версии артикулы (номера деталей) скрыты. Если вы хотите видеть полные оригинальные номера запчастей, вам необходимо зарегистрироваться на нашем сайте и приобрести подписку по интересующей вас конфигурации, после этого вы сможете встроить онлайн-каталоги на ваш сайт или пользоваться ими из личного кабинета нашего сайта. Обращаем ваше внимание на то, что каталоги содержат информацию об оригинальных заводских номерах и названиях запчастей. База по аналогам в данный момент не реализована. Поиска по VIN-номерам в онлайн-каталоге не предусмотрено. Выбор конкретного каталога осуществляется путем открытия нужного типа техники, марки, модели с учетом года выпуска или модификации.